Project
Southeast Community College Eicher Technical Center Renovation

Southeast Community College Eicher Technical Center Renovation
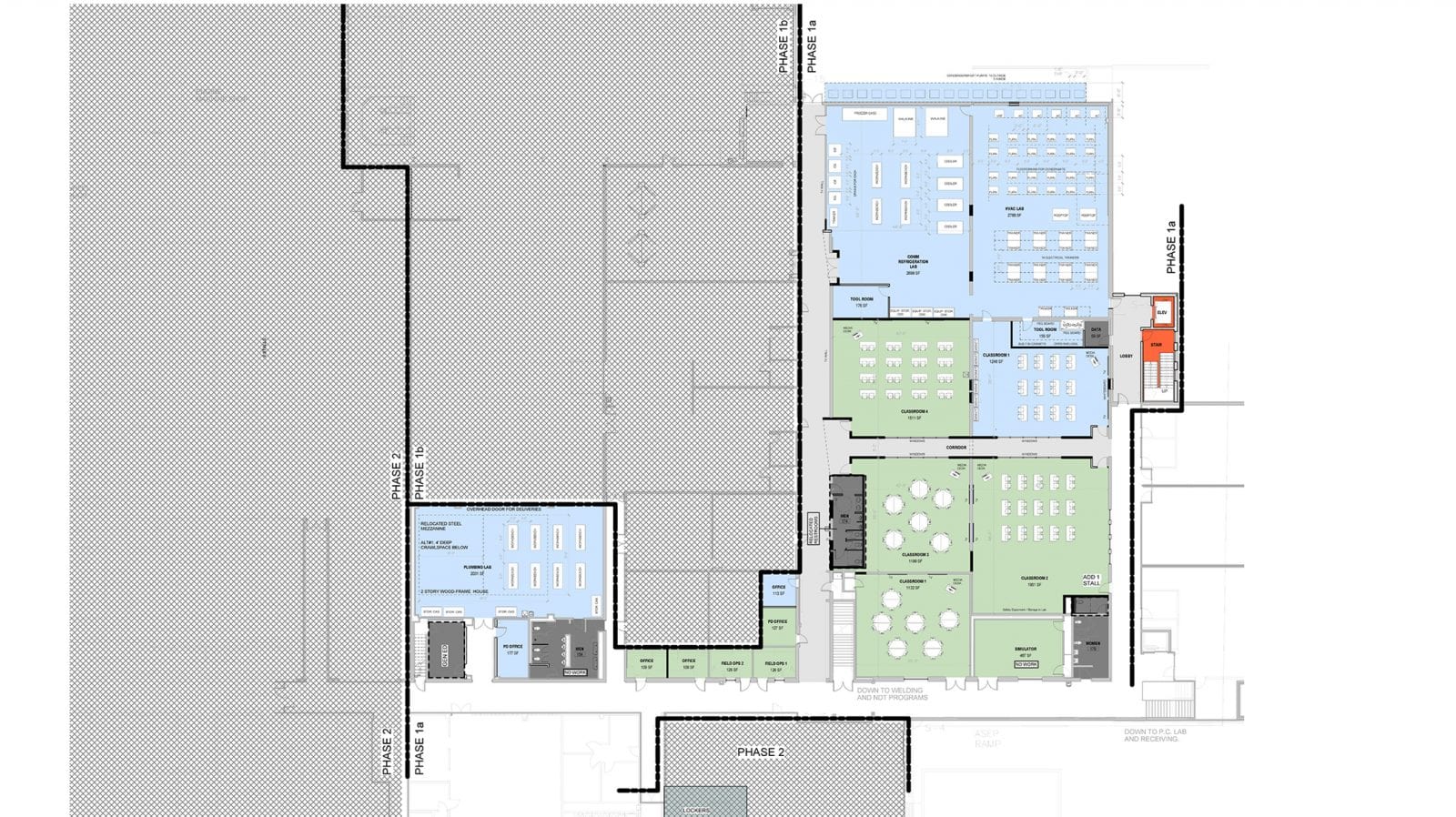
Schemmer provided preliminary design services for the interior renovation of the first and lower levels of the Southeast Community College (SCC) Eicher Technical Center, which will be vacated due to the new diesel technology building. The remodel will expand the Automotive program and move the HVAC and Plumbing programs from their current facility, which is planned to be demolished under the campus master plan. The project will enable SCC to plan for the implementation of the project and next design phases.